
Zurich Landiwiese
Denver Water Plant
Hyperloop Station
Hinsdale Tollway Oasis
CyFair College
Terrace Office Building
Seba Office Building
Studewood Office Building
Titan Condominium Building
Silvercrest Elementary
Washington Office Building
West Main Office Building
Montrose Condominium
Portland Residence Design
Airforce Cyberworx
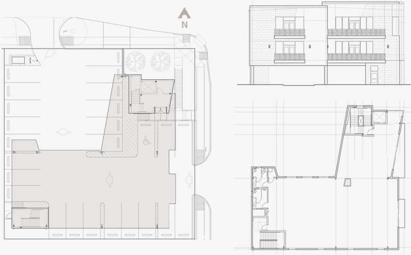
Terrace Office Building
3 story 10,000 s.f. office building located on Westheimer and Fairview Streets. We provided terraces to each office in the building and a private garage is located in the ground floor.
While at element architects.